Need To Sell Your Mobile Home or Manufactured Home Fast? We Buy Homes In And Around Dallas, Texas DFW area and Throughout Texas. See How…

Click Here

MOBILE HOME FOR SALE – 7608 Fm 4, Jacksboro, TX Sold

  • $50,000
  • 4 beds
  • 2 baths
  • 2584 sqft

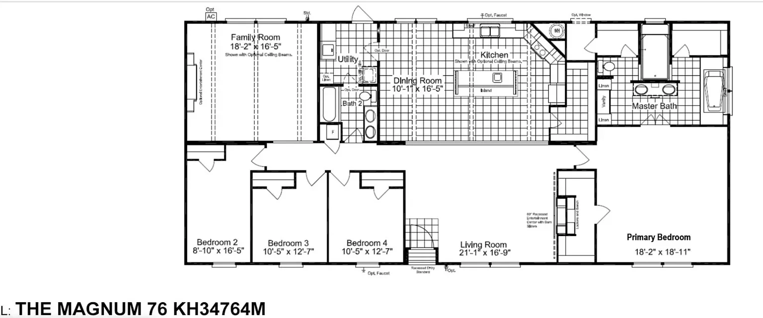
MOBILE HOME FOR SALE – 7608 Fm 4, Jacksboro, TX

This 2016 34×76 double-wide manufactured home is for sale only. No real estate or land is included, and the home must be moved. This is an owner-to-owner sale, with all paperwork facilitated by a licensed manufactured home broker between the seller and buyer.

The home is a Palm Harbor model called The Magnum, offering 2,584 square feet of living space, 4 bedrooms, 2 bathrooms, and a media room. It has solid structural integrity and a well-designed floor plan. All major systems are functional. This is an as-is sale and the home will need some TLC to bring it back to its full potential. The homeowner is motivated to sell and has priced the home at $50,000 cash, payable by certified cashier’s check only—no other payment methods will be accepted.

The home is located in Jacksboro, TX. Please note that the land is not for sale, and the home must be moved at the buyer’s expense. We can provide a contact number for a mobile home mover. Buyers must present valid ID and will be vetted before an appointment is scheduled. Additional fees will apply, including broker processing, Statement of Ownership transfer/title fees, prorated taxes, and use of TDHCA/TMHA contracts and disclosures.

All listings and pricing are subject to errors, omissions, or deletions, and buyers are encouraged to perform their own due diligence. While the listing information is deemed reliable, it is not guaranteed to be accurate. The seller is not offering seller financing, rent-to-own, payment plans, or rental options. Home must be moved—no exceptions. For more information, please contact the listing broker or agent directly.

Price:
$50,000
Address:
7608 Fm 4
Jacksboro, TX 76458
Square Feet:
2584
Bedrooms:
4
Bathrooms:
2
Terms:
For Sale
Property Type:
Manufactured
Year Built:
2016

Call 469-795-1227 for more details

Property Location