MOBILE HOME FOR SALE – Royse City, TX Sold

  • $90,000
  • 3 beds
  • 2 baths
  • 1216 sqft

MOBILE HOME FOR SALE – Royse City, TX

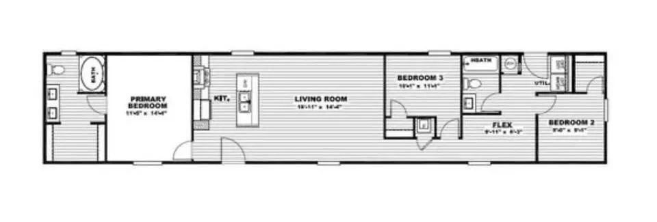
This is a 3/2, 1216 sqft built in 2022 single-wide mobile home set in a community park. Comes with all kitchen appliances and ample cabinet space.

Will have to get approved to live in the community by Park management. Cash or we can help you get a loan for it.

Contact us to view or ask questions at 469-795-1227. ID will be required to view the home.

Price:
$90,000
Address:
Royse City, TX 75189
Square Feet:
1216
Bedrooms:
3
Bathrooms:
2
Terms:
For Sale
Property Type:
Manufactured
Year Built:
2022

Call (469) 795-1227 for more details